Realizamos el cambio de uso de una nave ubicada en Valladolid para Box de Crossfit.
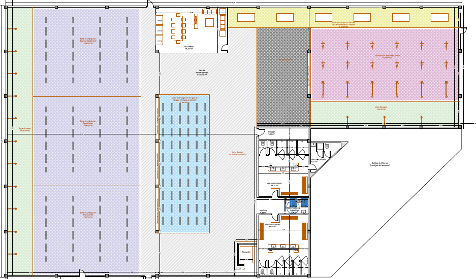
En esta ocasión nos encontramos con una edificación dividida en tres naves con diferentes usos, la central es objeto de este proyecto. Pasamos de un uso de compraventa de vehículos a una instalación deportiva.
Nuestro trabajo consiste en adecuar la nave correctamente para su uso y adaptarla a la normativa para el cumplimiento de la misma.
Sobre una parcela de 3.000,00m² la edificación a modificar cuenta con 1.400,00m² en los que se disponen la gran sala diáfana de entrenamiento dentro de la que se ubica una sala común y los vestuarios de hombres, mujeres y minusválidos, en el lateral derecho.
Esta disciplina tan específica requiere del estudio y conocimiento concienzudo de las necesidades, para poder establecer las dimensiones adecuadas de sus espacios y elegir los materiales y acabados adecuados que garanticen la limpieza y durabilidad de los mismos.
Desde Escalesa hemos conseguido un espacio funcional y agradable para los usuarios más exigentes.







