En marcha un nuevo espacio en Laguna como Centro de Danza.
Se nos propone el acondicionamiento de un local en Laguna para realizar la actividad de Centro de Danza. Nuestro arquitecto Eduardo Julio González Estébanez redacta el mismo cumpliendo con los requisitos establecidos por nuestro cliente adaptándolos a la normativa aplicable.

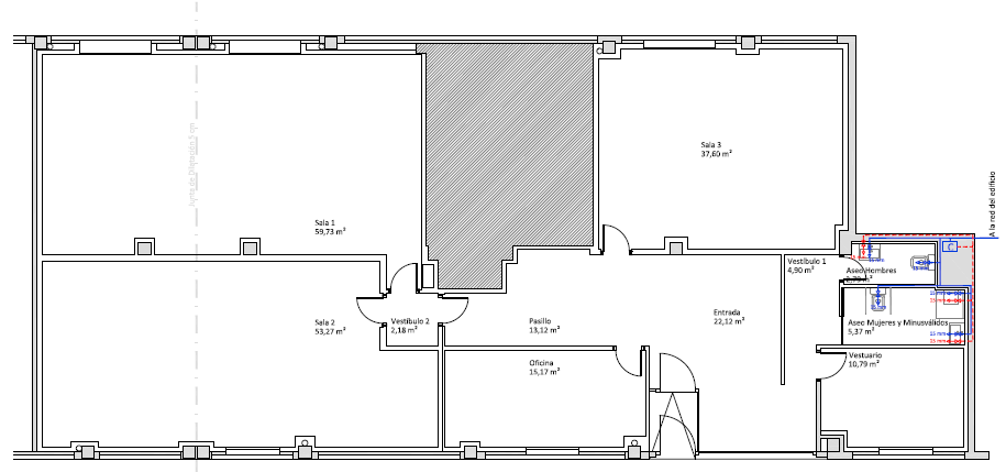
Partimos de un espacio diáfano y en bruto en planta baja de un bloque de viviendas, con una superficie útil de 230,00m² condicionado por un estrechamiento en la zona central debido a la situación del portal, que hemos resuelto como parte del pasillo y vestíbulo.
En la entrada al local nos encontramos con un cómodo espacio donde recibir a los usuarios y realizar las esperas oportunas. A la izquierda del mismo se sitúa la oficina y el lateral derecho se reserva para la zona de aseos y vestuarios, punto de partida y salida de los bailarines.
El resto del local está dedicado a la enseñanza, configurando 3 salas independientes donde se impartirán las clases y se llevarán a cabo los ensayos.
Hemos conseguido dotar al local de la comodidad necesaria para que el desarrollo de la actividad, el cambio de vestuario y aseo y la zona de espera no se vean interrumpidos y hemos aportado unos acabados limpios, funcionales y duraderos en previsión de su utilización por diferentes usuarios.







