Ejecución de la obra del proyecto para cafetería en Tudela redactado por Eduardo González Estébanez.
En esta ocasión realizamos una edificación exenta que completa las edificaciones principales, destinadas a clínica veterinaria, almacén y vivienda. De esta manera se da un servicio complementario a los clientes de la clínica, que desde la cafetería pueden ver a sus mascotas en los post operatorios.
Este uso anexo a los principales se sitúa en la zona de aparcamiento y entrada a la parcela.
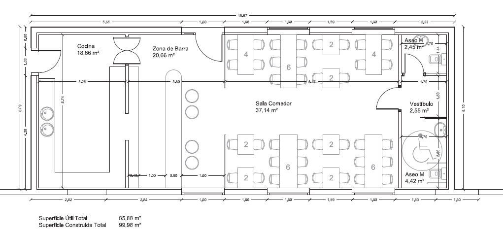
Se levanta una edificación de forma rectangular de dimensiones 15,00×6,30m² con una superficie construida de unos 100,00m², resolviendo la cubierta con inclinación a un solo agua.
El programa de necesidades responde a una cocina, zona de barra, sala comedor, vestíbulo , aseo de hombres y aseo compartido de mujeres y minusválidos. La configuración de los mismos a dado lugar a amplios espacios que favorecen la funcionalidad y son accesibles a personas con movilidad reducida.
Satisfechos con el resultado y con la acertada integración del nuevo edificio en el espacio existente.








