Se recibe el encargo de redacción de proyecto para 1 vivienda unifamiliar aislada en Aldeamayor de San Martín.
Eduardo Julio González Estébanez proyecta la vivienda incluyendo todos los usos en una sola planta.
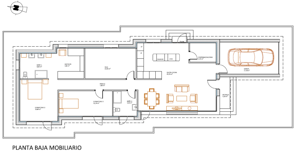
En esta ocasión la parcela irregular de 1.200,00 m² se encuentra diáfana y sin edificaciones y el programa de necesidades de la vivienda responde a salón-cocina, 2 cuartos de baño, 2 dormitorios uno de ellos con vestidor, 1 sala, 1 despensa/calderas, pasillo y garaje.
El proyecto se ha desarrollado mano a mano con el cliente, realizando una edificación personalizada y exclusiva, poniendo especial cuidado y atención en los materiales y acabados.








